🚨 ULTRA DERNIÈRE MINUTE HIVER : -5% supplémentaires 👉J'en profite
X
Studio
Comparateur de logements
Ajoutez vos logements favoris au comparateur en cliquant sur . Comparez-les et choisissez plus facilement celui qui vous plait le plus. Voir ma sélection et comparer 0

Locations studio de vacances à Les Saisies - Page 3

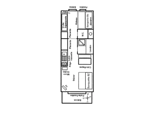
Studio cabine plein sud, Les Saisies, 4 pers

Studio, 1 pièce, 4 pers.
Les Saisies
studio 22 m² Au pied des pistes

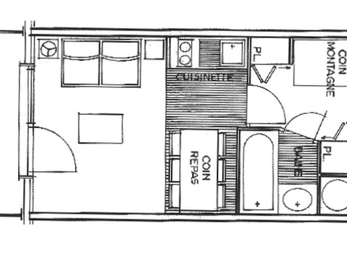
Studio cab. 5 pers. avec balcon sud et GARAGE, Les Saisies

Studio, 1 pièce, 5 pers.
Les Saisies
studio 20 m² Au pied des pistes Parking

Studio cabine ensoleillé avec vue sur pistes, pour 4 personnes

Studio, 1 pièce, 4 pers.
Les Saisies
studio 23 m² Au pied des pistes

Studio cabine aux Saisies, 5 pers, balcon sud

Studio, 1 pièce, 5 pers.
Les Saisies
studio 24 m²

Studio cabine Les Saisies - 4 pers, 24m² - Animaux admis

Studio, 1 pièce, 4 pers.
Les Saisies
studio 24 m² Animaux admis

Studio cabine Les Saisies - 4 pers, vue pistes, balcon sud

Studio, 1 pièce, 4 pers.
Les Saisies
studio 24 m² Au pied des pistes

Studio cabine Les Saisies - 4 pers, balcon sud, vue sur pistes

Studio, 1 pièce, 4 pers.
Les Saisies
studio 22 m²

Appartement cosy 2 pièces, 5 pers, Les Saisies

Studio, 1 pièce, 5 pers.
Les Saisies
studio 26 m² Wifi

Studio Cabine aux Saisies, 4 pers, Terrasse Sud, Vue Montagnes

Studio, 1 pièce, 4 pers.
Les Saisies
studio 22 m² Animaux admis

Studio cosy avec balcon et vue panoramique

Studio, 1 pièce, 2 pers.
Les Saisies
studio 18 m²

Studio cabine 4 pers, vue sud Les Saisies

Studio, 1 pièce, 4 pers.
Les Saisies
studio 22 m² Au pied des pistes

Les Saisies - Studio Cabine 4 Pers, Sud Exposé

3.0 (1 avis) - Bien
Studio, 1 pièce, 4 pers.
Les Saisies
studio 22 m²
Loading...